🏢 Locales comerciales en venta – Paseo Pilmaiquén, Bahía Blanca
Paseo Pilmaiquén es un nuevo desarrollo comercial ubicado en Pilmaiquén 150, pensado para potenciar la actividad comercial y generar un entorno moderno, dinámico y de alto tránsito.
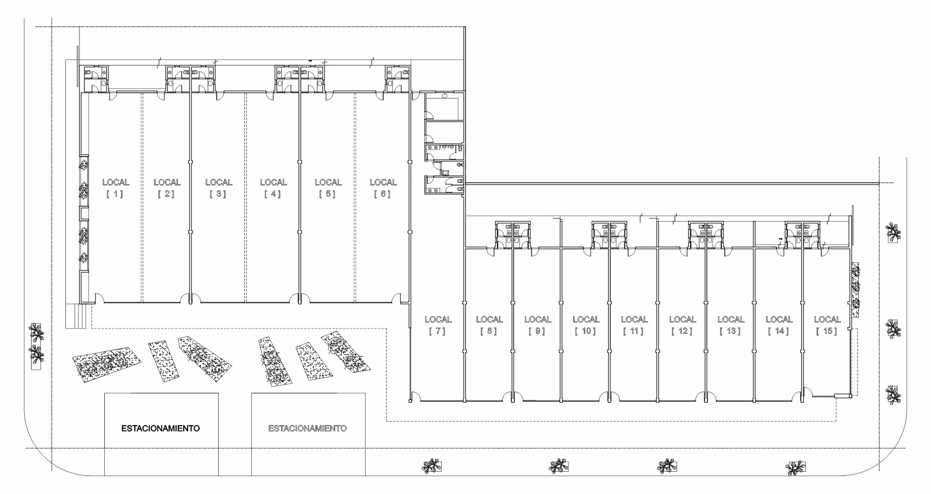
El proyecto cuenta con 15 locales comerciales de distintas superficies, diseñados para adaptarse a múltiples rubros, desde emprendimientos hasta marcas consolidadas.
Su propuesta combina diseño contemporáneo, circulación peatonal y espacios abiertos, generando una experiencia atractiva tanto para clientes como para comerciantes.
Características:
🔹 15 locales comerciales
🔹 Diferentes superficies disponibles
🔹 Diseño moderno y funcional
🔹 Espacio con circulación peatonal
🔹 Ideal para múltiples rubros
Forma de pago accesible.
Una excelente oportunidad para quienes buscan invertir en un desarrollo con proyección, visibilidad y potencial de crecimiento.
📞 Consultanos para más información o coordinar una visita:
2914120764 – 2915052737 – 2916415386 – 2916480482
📍 Rodríguez 87 – Lunes a viernes de 9 a 18 hs






